横浜市緑区周辺の一戸建て|株式会社billion > (戸建(売買))地域から探す > 横浜市港北区 > 綱島東5丁目 新築一戸建て > 物件詳細
◆駅まで平坦♪
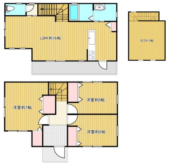
◆7帖の大型ロフト付!
◆おしゃれな内装のデザイン住宅♪
現地見学会 毎週土日祝











(※元利均等方式 金利5.00%まで ※返済年数5~50年まで入力できます)
(※ボーナスは年2回で計算しています。1000万円まで入力できます)
(※物件購入時、その他諸費用が発生する場合がございます)
| 所在地 | 神奈川県横浜市港北区綱島東5丁目 | ||
|---|---|---|---|
| 交通 | |||
| 間取り/詳細 |
3LDK/ LDK 16.0帖/洋室 7.0帖/洋室 5.0帖/洋室 5.0帖/その他 7.0帖 |
建物面積(坪数) | 72.30㎡(21.87坪) |
| 価格 | 4,980万円 | ||
| 駐車場/月額料金 | -/- | ||
| 土地の敷金/保証金 | -/- | 借地料/借地期間 | -/- |
| 土地権利 | 所有権 | 土地面積(坪数) | 76.03㎡(22.99坪) |
| 傾斜地部分面積 | - | 路地状敷地 | - |
| 私道負担面積/セットバック | -/無 | 高圧線下面積 | - |
| 地目/地勢 | 宅地/- | 接道状況 | - |
| 建ぺい率/容積率 | 60%/200% | 用途地域 | 第一種住居 |
| 都市計画 | - | 種別/構造 | 新築一戸建/木造 |
| 階建 | 2階建 | 築年月(築年数) | 2025年 12月 (予定) |
| 総区画数/販売区画数 | -/- | 向き | - |
| 現況 | 未完成 | その他の法令上の制限 | - |
| 取引態様/引渡時期 | 仲介/相談 | 建築確認番号 | 第KBI-SGM25-10-2452号 |
| 物件番号 | 95888573 | 取引条件の有効期限 | 2025年11月20日 |
| 設備条件 |
|
||
| 取扱会社 |
|
||
| QRコード |
このQRコードを読み取ることで、スマホでも物件情報を確認できます。 |
||
※地図上に表示される物件の位置は付近住所に所在することを表すものであり、実際の物件所在地とは異なる場合がございます。
綱島東5丁目 新築一戸建てに関するこだわり条件から探す
横浜市港北区以外の市区町村から探す
横浜市港北区の町名から探す